Bebauungsplan Nr. 14 "Seelauerfeld" ist rechtskräftig abgeschlossen.
Bebauungspläne / Flächennutzungsplan
Flächennutzungsplan Gemeinde Schneizlreuth

Flächennutzungsplan Gemeinde Schneizlreuth
Der Flächennutzungsplan für die Gemeinde Schneizlreuth ist rechtskräftig abgeschlossen.
Downloads
001 - Bebauungsplan Nr. 1 "Ödersiedlung"

Bebauungsplan Nr. 1 "Ödersiedlung"
Bebauungsplan Nr. 1 "Ödersiedlung" ist rechtskräftig abgeschlossen.
Downloads
002 - Bebauungsplan Nr. 2 "Schneizlreuth-Ost"

Bebauungsplan Nr. 2 "Schneizlreuth-Ost"
Bebauungsplan Nr. 2 "Schneizlreuth-Ost" ist rechtskräftig abgeschlossen.
Downloads
003 - Bebauungsplan Nr. 3 "Kirchensiedlung"

Bebauungsplan Nr. 3 "Kirchensiedlung"
Bebauungsplan Nr. 3 "Kirchensiedlung" ist rechtskräftig abgeschlossen.
Downloads
1. Änderung zur Satzung des Bebauungsplanes Nr. 3 "Kirchensiedlung"
2. Änderung zur Satzung des Bebauungsplanes Nr. 3 "Kirchensiedlung"
3. Änderung zur Begründung des Bebauungsplanes Nr. 3 "Kirchensiedlung"
3. Änderung zur Satzung des Bebauungsplanes Nr. 3 "Kirchensiedlung"
4. Änderung zur Satzung des Bebauungsplanes Nr. 3 "Kirchensiedlung"
5. Änderung zur Satzung des Bebauungsplanes Nr. 3 "Kirchensiedlung"
6. Änderung zur Satzung des Bebauungsplanes Nr. 3 "Kirchensiedlung"
7. Änderung zur Begründung des Bebauungsplanes Nr. 3 "Kirchensiedlung"
8. Änderung zur Begründung des Bebauungsplanes Nr. 3 "Kirchensiedlung"
9. Änderung zur Satzung des Bebauungsplanes Nr. 3 "Kirchensiedlung"
9. Änderung zur Begründung des Bebauungsplanes Nr. 3 "Kirchensiedlung"
9. Änderung Zusammenfassende Erklärung des Bebauungsplanes Nr. 3 "Kirchensiedlung"
004 - Bebauungsplan Nr. 4 "Obere Au"

Bebauungsplan Nr. 4 "Obere Au"
Bebauungsplan Nr. 4 "Obere Au" ist rechtskräftig abgeschlossen.
Downloads
1. Änderung zur Satzung des Bebauungsplanes Nr. 4 "Obere Au"
2. Änderung zur Satzung des Bebauungsplanes Nr. 4 "Obere Au"
3. Änderung zur Satzung des Bebauungsplanes Nr. 4 "Obere Au"
4. Änderung zur Satzung des Bebauungsplanes Nr. 4 "Obere Au"
5. Änderung zur Satzung und Begründung des Bebauungsplanes Nr. 4 "Obere Au"
005 - Bebauungsplan Nr. 5 "Fronau"
Bebauungsplan Nr. 5 "Fronau"
Bebauungsplan Nr. 5 "Fronau" ist rechtskräftig abgeschlossen.
Downloads
1. Änderung der Begründung des Bebauungsplanes Nr. 5 "Fronau"
2. Änderung zum Bebauungsplan Nr. 5 "Teilbaugebiet Fronau" - Bekanntmachung des Satzungsbeschlusses
2. Änderung des Bebauungsplanes Nr. 5 "Teilbaugebiet Fronau" mit Satzung
2. Änderung zur Begründung zum Bebauungsplanes Nr. 5 "Teilbaugebeit Fronau"
006 - Bebauungsplan Nr. 6 "Reiterbauer und Forst"

Bebauungsplan Nr. 6 "Reiterbauer und Forst"
Bebauungsplan Nr. 6 "Reiterbauer und Forst" ist rechtskräftig abgeschlossen.
Downloads
1. Änderung des Bebauungsplanes Nr. 6 "Reiterbauer und Forst"
2. Änderung des Bebauungsplanes Nr. 6 "Reiterbauer und Forst"
2. Änderung zur Begründung und Umweltbericht zum Bebauungsplan Nr. 6 "Reiterbauer und Forst"
3. Änderung - Bekanntmachung Reiterbauer und Forst
Bekanntmachung der Genehmigung sowie des Satzungsbeschlusses3. Änderung des Bebauungsplanes Nr. 6 "Reiterbauer und Forst"
3. Änderung zur Begründung mit Umweltbericht zum Bebauungsplan Nr. 6 "Reiterbauer und Forst"
12. Änderung des Flächennutzungsplanes zum "Reiterbauer und Forst"
Begründung zur 12. Änderung des Flächennutzungsplanes zum "Reiterbauer und Forst"
007 - Bebauungsplan Nr. 7 "Auenstrasse"

Bebauungsplan Nr. 7 "Auenstrasse"
Bebauungsplan Nr. 7 "Auenstrasse" ist rechtskräftig abgeschlossen.
Downloads
008 - Bebauungsplan Nr. 8 "Mautnerfeld"

Bebauungsplan Nr. 8 "Mautnerfeld"
Bebauungsplan Nr. 8 "Mautnerfeld" ist rechtskräftig abgeschlossen.
Downloads
009 - Bebauungsplan Nr. 9 "Weißbach-Mitte-I"

Bebauungsplan Nr. 9 "Weißbach-Mitte-I"
Bebauungsplan Nr. 9 "Weißbach-Mitte-I" ist rechtskräftig abgeschlossen.
Downloads
010 - Bebauungsplan Nr. 10 "Schneizlreuth-West"
Bebauungsplan Nr. 10 "Schneizlreuth-West"
Das Aufhebungsverfahren des Bebauungsplanes Nr. 10 "Schneizlreuth-West" ist rechtskräftig abgeschlossen.
Downloads
Bekanntmachung Schneizlreuth West
Bekanntmachung des Satzungsbeschlusses der Aufhebung des Bebauungsplanes Nr. 10 "Schneizlreuth-West"Begründung und Satzung zur Aufhebung des BP Schneizreuth-West
013 - Bebauungsplan Nr. 13 "Ristfeucht"

Bebauungsplanes Nr. 13 "Ristfeucht"
Bebauungsplan Nr. 13 Ristfeucht ist rechtskräftig abgeschlossen.
Downloads
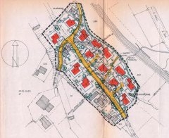
014 - Bebauungsplan Nr. 14 "Seelauerfeld"

Bebauungsplan Nr. 14 "Seelauerfeld"
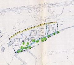
015 - Bebauungsplan Nr. 15 "Weißbach-Mitte-II"

Bebauungsplan Nr. 15 "Weißbach-Mitte-II"
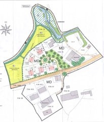
017 - Bebauungsplan Nr. 17 "Weissbach-Mitte-Feuerwehr"

Bebauungsplan Nr. 17 "Weissbach-Mitti-Feuerwehr"
Downloads
Bekanntmachung der Genehmigung sowie des Satzungsbeschlusses
Abwägung der öffentlichen Auslegung nach § 3 Abs. 2 BauGB und § 4 Abs. 2 BauGB
Begründung mit Umweltbericht zum Bebauungsplan Nr. 17 Weißbach-Mitte-Feuerwehr
Schalltechnisches Gutachten zum Bebauungsplan Nr. 17 Weißbach-Mitte-Feuerwehr
10. Änderung des Flächennutzungsplanes Weißbach an der Alpenstraße
Begründung zur 10. Änderung des Flächennutzungsplanes Weißbach an der Alpenstraße
Zusammenfassende Erklärung gem. §6 Abs. 5 und §10 Abs.4 BauGB
018 - Bebauungsplan Nr. 18 "Jochbergstraße"



